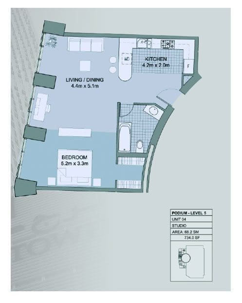
Cayan Tower Studio Apartment Unit 04 Floor Plans

Contact Us

    We're open for any Queries

    Address: Mezzanine Floor Liberty Building - Al Quoz 3 Sheikh Zayed Rd - Dubai

    Compare listings

    Compare
    WhatSapp Image